Floor plans

  • shutters on selected downstairs windows
  • fitted Howdens kitchen with a Silestone worktop
  • integrated appliances
  • air source heat pump (ASHP)
  • mechanical ventilation heat recovery (MVHR)
  • triple-glazed windows
  • private garden
  • covered bike storage
  • shared ginnel to the rear of the property
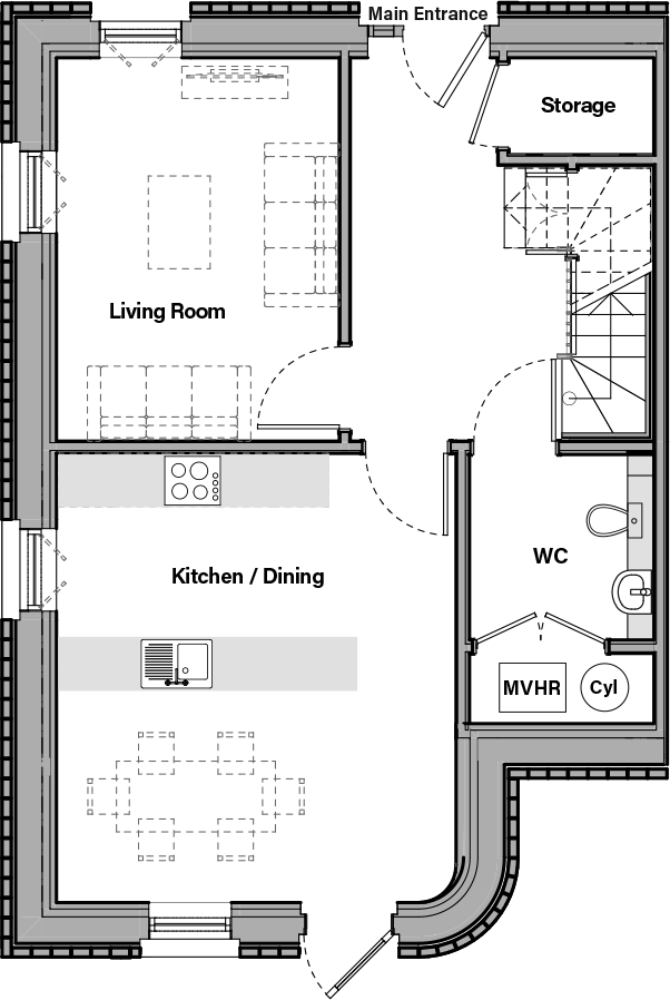
Perseus south ground floor plan
  • 2 double bedrooms
  • contemporary bathroom
  • study area
  • triple-glazed windows
  • private balcony
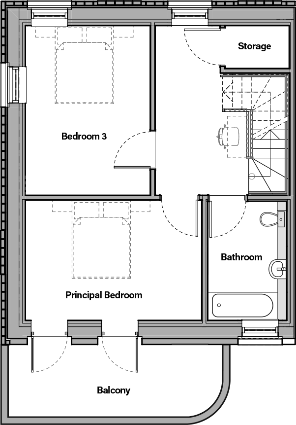
Perseus south first floor plan
  • 2 double bedrooms
  • en suite bathroom
  • study area
  • triple-glazed windows
  • solar PV panels
Perseus south second floor plan

Ground floor

  • shutters on selected downstairs windows
  • fitted Howdens kitchen with a Silestone worktop
  • integrated appliances
  • air source heat pump (ASHP)
  • mechanical ventilation heat recovery (MVHR)
  • triple-glazed windows
  • private garden
  • covered bike storage
  • shared ginnel to the rear of the property
Perseus south ground floor plan

First floor

  • 2 double bedrooms
  • contemporary bathroom
  • study area
  • triple-glazed windows
  • private balcony
Perseus south first floor plan

Second floor

  • 2 double bedrooms
  • en suite bathroom
  • study area
  • triple-glazed windows
  • solar PV panels
Perseus south second floor plan

We won’t accept anything less.

Our homes are built to the rigorous Passivhaus standard, ensuring exceptional energy efficiency, comfort, and sustainability. Using high-quality, sustainable materials, each home is carefully designed and constructed to deliver excellence in every detail.

  • built to Passivhaus standards for world leading energy efficiency
  • triple-glazed windows
  • solar PV panels
  • air source heat pump
  • mechanical ventilation with heat recovery
  • access to nature, outdoor activities, and communal food growing, with fitness and play equipment across three green spaces
  • on-site Enterprise Car Club
  • private and communal bike storage
  • sustainable travel vouchers for bus or cycles and Enterprise Car Club membership per household
Burnholme Green internal photo of a living room, with large windows and a door leading to an outside space. Decorated with minimal scandi style furniture
Burnholme Green external photo showing a footpath running alongside the frontage of a row of properties on the development
  • secure and covered bike storage
  • private garden
  • composite (i.e. aluminium and wood) external doors
  • external lighting to the front and rear
  • shared ginnels with planters to the rear
Burnholme Green external photo showing people walking along a footpath through a natural looking green space, and a Burnholme Green property in the background
Burnholme Green external photo showing people enjoying the green spaces around the properties
  • fitted Howdens kitchen with Silestone worktop
  • integrated kitchen appliances
  • contemporary bathrooms
  • downstairs WC
  • softwood staircase
  • oak veneer surrounds on windows
  • shutters on selected downstairs windows
Burnholme Green internal bedroom photo showing a four poster bed, covered in bedding and pillows, looking very cosy, also in the room are some side tables and a large wardrobe. The décor is neutral and there a 2 large exterior windows on the far wall
Burnholme Green internal living room photo, decorated and furnished in scandi style natural and neutral colours, giving a cosy feel, exterior windows on one wall and on the opposite a doorway leading to the inner hall
  • 10-year ICW structural warranty
  • after-sales support from City of York Council
Burnholme Green external photo showing people at a seating area in a communal outdoor space, outside rows of properties
Burnholme Green internal photo showing a kitchen with dark grey units, tiles splash backs and white walls.

Sustainable features

  • built to Passivhaus standards for world leading energy efficiency
  • triple-glazed windows
  • solar PV panels
  • air source heat pump
  • mechanical ventilation with heat recovery
  • access to nature, outdoor activities, and communal food growing, with fitness and play equipment across three green spaces
  • on-site Enterprise Car Club
  • private and communal bike storage
  • sustainable travel vouchers for bus or cycles and Enterprise Car Club membership per household
Burnholme Green internal photo of a living room, with large windows and a door leading to an outside space. Decorated with minimal scandi style furniture
Burnholme Green external photo showing a footpath running alongside the frontage of a row of properties on the development

External

  • secure and covered bike storage
  • private garden
  • composite (i.e. aluminium and wood) external doors
  • external lighting to the front and rear
  • shared ginnels with planters to the rear
Burnholme Green external photo showing people walking along a footpath through a natural looking green space, and a Burnholme Green property in the background
Burnholme Green external photo showing people enjoying the green spaces around the properties

Internal

  • fitted Howdens kitchen with Silestone worktop
  • integrated kitchen appliances
  • contemporary bathrooms
  • downstairs WC
  • softwood staircase
  • oak veneer surrounds on windows
  • shutters on selected downstairs windows
Burnholme Green internal bedroom photo showing a four poster bed, covered in bedding and pillows, looking very cosy, also in the room are some side tables and a large wardrobe. The décor is neutral and there a 2 large exterior windows on the far wall
Burnholme Green internal living room photo, decorated and furnished in scandi style natural and neutral colours, giving a cosy feel, exterior windows on one wall and on the opposite a doorway leading to the inner hall

General

  • 10-year ICW structural warranty
  • after-sales support from City of York Council
Burnholme Green external photo showing people at a seating area in a communal outdoor space, outside rows of properties
Burnholme Green internal photo showing a kitchen with dark grey units, tiles splash backs and white walls.