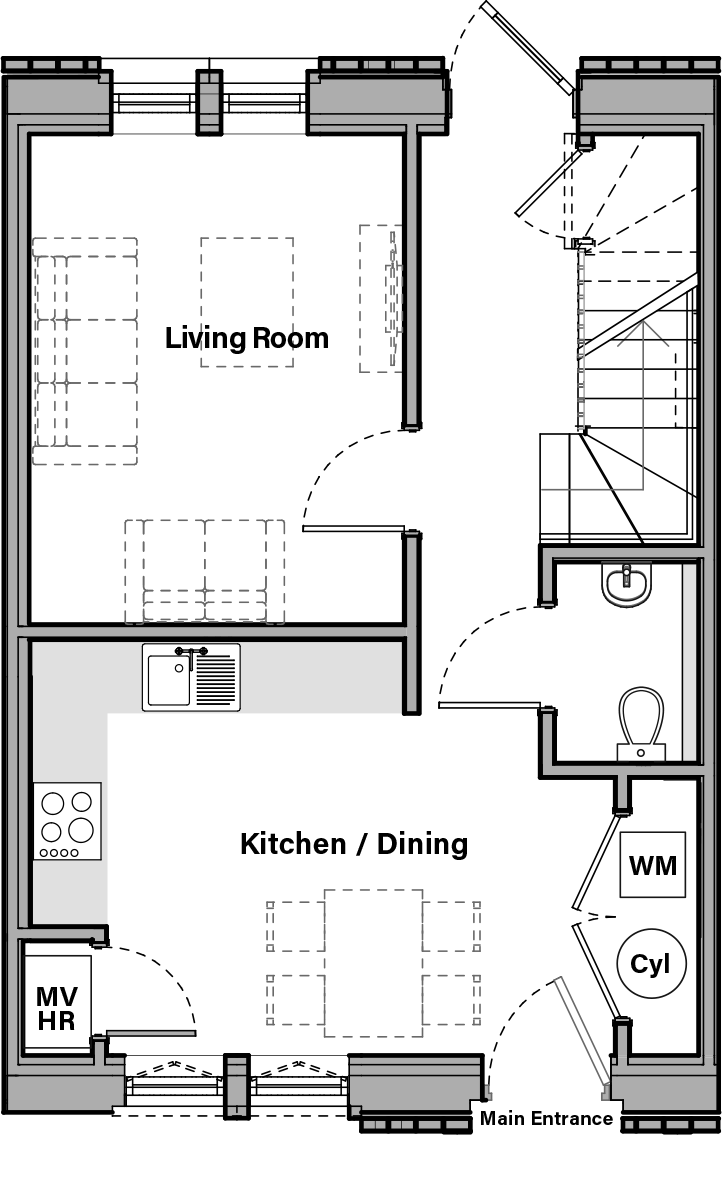
Floor plans

  • shutters on selected downstairs windows
  • fitted Howdens kitchen with a Silestone worktop
  • integrated appliances
  • air source heat pump (ASHP)
  • mechanical ventilation heat recovery (MVHR)
  • triple-glazed windows
  • private garden
  • covered bike storage
  • shared ginnel to the rear of the property
Aquila North ground floor plans
  • 2 double bedrooms
  • contemporary bathroom
  • triple-glazed windows
  • solar PV panels
Aquila North first floor plans

Ground floor

  • shutters on selected downstairs windows
  • fitted Howdens kitchen with a Silestone worktop
  • integrated appliances
  • air source heat pump (ASHP)
  • mechanical ventilation heat recovery (MVHR)
  • triple-glazed windows
  • private garden
  • covered bike storage
  • shared ginnel to the rear of the property
Aquila North ground floor plans

First floor

  • 2 double bedrooms
  • contemporary bathroom
  • triple-glazed windows
  • solar PV panels
Aquila North first floor plans

We won’t accept anything less.

Our homes are built to the rigorous Passivhaus standard, ensuring exceptional energy efficiency, comfort, and sustainability. Using high-quality, sustainable materials, each home is carefully designed and constructed to deliver excellence in every detail.

  • built to Passivhaus standards for world leading energy efficiency
  • triple-glazed windows
  • solar PV panels
  • air source heat pump
  • mechanical ventilation with heat recovery
  • access to nature, outdoor activities, and communal food growing, with fitness and play equipment across three green spaces
  • on-site Enterprise Car Club
  • private and communal bike storage
  • sustainable travel vouchers for bus or cycles and Enterprise Car Club membership per household
Burnholme Green internal photo of a living room, with large windows and a door leading to an outside space. Decorated with minimal scandi style furniture
Burnholme Green internal bedroom photo showing a vaulted ceiling and space for 2 single beds, the room is also furnished with a desk and chair, some wall art and neutral décor, on the far wall is a large external
  • secure and covered bike storage
  • private garden
  • composite (i.e. aluminium and wood) external doors
  • external lighting to the front and rear
  • shared ginnels with planters to the rear
Burnholme Green external photo showing a footpath running alongside the frontage of a row of properties on the development
Burnholme Green external photo showing people at a seating area in a communal outdoor space, outside rows of properties
  • fitted Howdens kitchen with Silestone worktop
  • integrated kitchen appliances
  • contemporary bathrooms
  • downstairs WC
  • softwood staircase
  • oak veneer surrounds on windows
  • shutters on selected downstairs windows
Burnholme Green internal bathroom photo showing a bath with overhead shower and shower screen, the bath is tiled to the sides under and over, the room is neutral in décor and also features a toilet, sink and mirror
Burnholme Green internal bedroom photo showing a four poster bed, covered in bedding and pillows, looking very cosy, also in the room are some side tables and a large wardrobe. The décor is neutral and there a 2 large exterior windows on the far wall
  • 10-year ICW structural warranty
  • after-sales support from City of York Council
Burnholme Green external photo showing people walking along a footpath through a naturally planted green space, with Burnholme Green development in the background
Burnholme Green internal bedroom photo showing a single bed with night stand, a set of drawers and a wardrobe, scandi style furniture and accessories decorate the room, on the far wall is a large external window

Sustainable features

  • built to Passivhaus standards for world leading energy efficiency
  • triple-glazed windows
  • solar PV panels
  • air source heat pump
  • mechanical ventilation with heat recovery
  • access to nature, outdoor activities, and communal food growing, with fitness and play equipment across three green spaces
  • on-site Enterprise Car Club
  • private and communal bike storage
  • sustainable travel vouchers for bus or cycles and Enterprise Car Club membership per household
Burnholme Green internal photo of a living room, with large windows and a door leading to an outside space. Decorated with minimal scandi style furniture
Burnholme Green internal bedroom photo showing a vaulted ceiling and space for 2 single beds, the room is also furnished with a desk and chair, some wall art and neutral décor, on the far wall is a large external

External

  • secure and covered bike storage
  • private garden
  • composite (i.e. aluminium and wood) external doors
  • external lighting to the front and rear
  • shared ginnels with planters to the rear
Burnholme Green external photo showing a footpath running alongside the frontage of a row of properties on the development
Burnholme Green external photo showing people at a seating area in a communal outdoor space, outside rows of properties

Internal

  • fitted Howdens kitchen with Silestone worktop
  • integrated kitchen appliances
  • contemporary bathrooms
  • downstairs WC
  • softwood staircase
  • oak veneer surrounds on windows
  • shutters on selected downstairs windows
Burnholme Green internal bathroom photo showing a bath with overhead shower and shower screen, the bath is tiled to the sides under and over, the room is neutral in décor and also features a toilet, sink and mirror
Burnholme Green internal bedroom photo showing a four poster bed, covered in bedding and pillows, looking very cosy, also in the room are some side tables and a large wardrobe. The décor is neutral and there a 2 large exterior windows on the far wall

General

  • 10-year ICW structural warranty
  • after-sales support from City of York Council
Burnholme Green external photo showing people walking along a footpath through a naturally planted green space, with Burnholme Green development in the background
Burnholme Green internal bedroom photo showing a single bed with night stand, a set of drawers and a wardrobe, scandi style furniture and accessories decorate the room, on the far wall is a large external window